产品描述

E10-15GL电动平衡重式叉车参数表 | ||||||
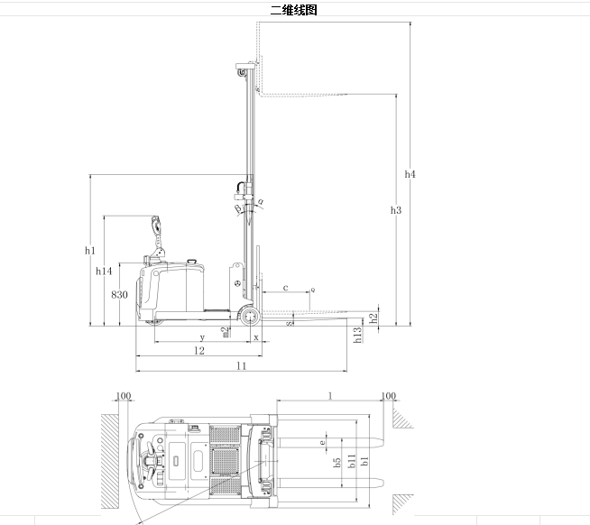
| 特征 distinguishing mark | ||||||
| 1.1 | 制造商 | Manufacturer | 加力 JIALIFT | |||
| 1.2 | 型号 | Manufacturer's type designation | E1030GL | E1330GL | E1530GL | |
| 1.3 | 驱动方式 | Drive | 电动 Electric | |||
| 1.4 | 驾驶方式 | Operator type | 站驾式 | |||
| 1.5 | 额定载荷 | Load capacity | Q(kg) | 1000 | 1300 | 1500 |
| 1.6 | 载荷中心距 | Load center distance | c (mm) | 500 | ||
| 1.7 | 前悬距 | centre of drive axle to fork | x (mm) | 150 | ||
| 1.8 | 轴距 | Wheelbase | y (mm) | 1203 | 1203 | 1330 |
| 重量Weight | ||||||
| 2.1 | 自重(含电瓶) | Service weight (include battery) | kg | 1590 | 1680 | 1740 |
| 2.2 | 轴负载,满载时前/后轴 | Axle loading,laden front/rear | kg | 2110/480 | 2410/570 | 2920/320 |
| 2.3 | 轴负载,空载时前/后轴 | Axle loading,unladen front/rear | kg | 670/920 | 710/970 | 780/960 |
| 轮胎 ,底盘Types,Chassis | ||||||
| 3.1 | 轮子类型,驱动轮/承载轮 | Tyre type driving wheels/loading wheels | 聚氨酯 PU | 聚氨酯 PU | 聚氨酯 PU | |
| 3.2 | 轮子尺寸,前轮(直径×宽度) | Tyre size,front(diameter×width) | mm | Φ250×120 | Φ250×120 | Φ250×120 |
| 3.3 | 轮子尺寸,后轮(直径×宽度) | Tyre size ,rear(diameter×width) | mm | Φ250×75 | Φ250×75 | Φ250×75 |
| 3.4 | 驱动轮,平衡轮/承载轮数量(x=驱动轮) | Wheels, number driving,caster/ loading (x=drive wheels) | 1x,0/2 | 1x,0/2 | 1x,0/2 | |
| 3.5 | 前轮轮距 | Tread,front | b11 (mm) | 869 | 869 | 869 |
| 3.6 | 后轮距 | Thread,rear | mm | 0 | 0 | 0 |
| 尺寸 Dimensions | ||||||
| 4.1 | 门架/货叉倾斜 前倾/后倾 | Mast/fork carriage tilt, forward/backward | a/b (°) | 2/5 | 2/5 | 2/5 |
| 4.2 | 门架缩回时高度 | Height,mast lowered | h1 (mm) | 1995 | 1995 | 1995 |
| 4.3 | 自由提升高度 | Free lift | h2 (mm) | 100 | 100 | 100 |
| 4.4 | 起升高度 | Lift height | h3 (mm) | 3000 | 3000 | 3000 |
| 4.5 | 作业时门架最大高度 | Maximum height of gantry | h4 (mm) | 3985 | 3985 | 3985 |
| 4.6 | 货叉下降后叉面高度 | Lowered height | h13 (mm) | 35 | 35 | 35 |
| 4.8 | 站立高度 | stand height | h7 (mm) | 127 | 127 | 127 |
| 4.9 | 操作手柄在驱动位量的最小/最大高度 | Height of tiller in drive position min./max. | h14 (mm) | 1105/1440 | 1105/1440 | 1105/1440 |
| 4.10 | 整车长度 | Overall length | l1 (mm) | 2538 | 2538 | 2665 |
| 4.11 | 到货叉垂直面的长度 | Length to face of forks | l2 (mm) | 1588 | 1588 | 1715 |
| 4.12 | 整体宽度 | Overall width | b1 (mm) | 814/998 | 814/998 | 814/998 |
| 4.13 | 货叉尺寸 | Fork dimensions | s/ e/ l (mm) | 35/100/950 | 35/100/950 | 35/100/950 |
| 4.14 | 货叉外宽 | Distance between fork-arms | b5 (mm) | 220-720 | 220-720 | 220-720 |
| 4.15 | 轴距中心处离地间隙 | Ground clearance, center of wheelbase | m2 (mm) | 86 | 86 | 86 |
| 4.16 | 托盘为 1200宽 × 1000长的通道宽度 | Aisle width for pallets 1000 × 1200 crossways | Ast (mm) | 2945 | 2945 | 3067 |
| 4.17 | 托盘为800宽 × 1200长的通道宽度 | Aisle width for pallets 800 × 1200 lengthways | Ast (mm) | 3055 | 3055 | 3177 |
| 4.18 | 最小转弯半径 | Turning radius | Wa (mm) | 1445 | 1445 | 1570 |
| 性能参数 Performance data | ||||||
| 5.1 | 行驶速度,满载/空载 | Travel speed, laden/ unladen | km/h | 5.2/5.5 | ||
| 5.2 | 起升速度,满载/空载 | Lifting speed, laden/ unladen | m/ s | 0.042/0.83 | 0.042/0.83 | 0.057/0.79 |
| 5.3 | 下降速度,满载/空载 | Lowering speed, laden/ unladen | m/ s | 0.117/0.49 | 0.117/0.49 | 0.060/0.57 |
| 5.4 | 最大爬坡度,满载/空载 | Max. gradeability, laden/unladen | % | 6/8 | 6/8 | 6/8 |
| 5.5 | 加速时间,满载/空载 | Acceleration time with/without load | s | / | / | |
| 5.60 | 制动类型 | Service brake type | 电磁制动 Electromagnetic | |||
| 电机,动力源 Electric-engine | ||||||
| 6.1 | 驱动电机额定功率 S2 60分钟 | Drive motor rating S2 60 min | kW | 1.7 | ||
| 6.2 | 起升电机额定功率 S3 15% | Lift motor rating at S3 15% | kW | 2.2 | ||
| 6.3 | 电瓶电压/标称容量 K5 | Battery voltage/nominal capacity K5 | V/Ah | 24/210 | ||
| 6.4 | 电瓶重量 | Battery weight | kg | 210 | ||
| 6.5 | 电瓶允许最大尺寸 | The maximum allowed size battery | mm | 790/210/458 | ||
| 6.6 | 能耗 ,根据VDI循环 | Energy consumption acc. to VDI cycle | kW/h | - | ||
| 其他数据 Addition data | ||||||
| 8.1 | 驱动控制类型 | Type of drive control | 交流速度控制 AC | |||
| 8.2 | 转向类型 | Steering type | 电子助力 Electronic Assistance | |||
| 8.3 | 噪音等级 | Sound pressure level at the driver’s ear | dB(A) | ≤75 | ||





电话: 400-996-7021






