产品描述

EGS12FD电动平衡重式叉车参数表 | ||||
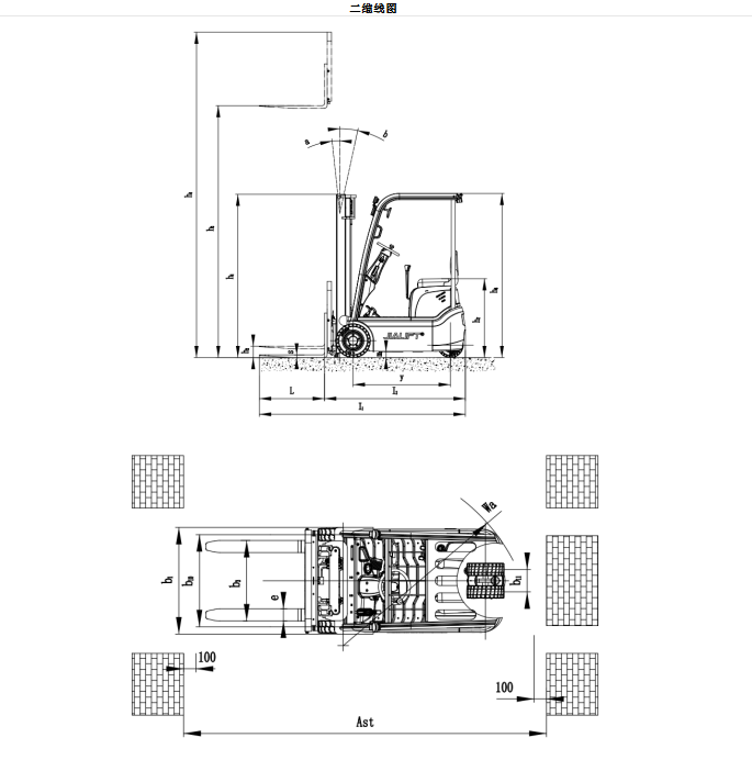
| 特征 distinguishing mark | ||||
| 1.1 | 1.2 | Manufacturer | 加力 JIALIFT | |
| 1.2 | 型号 | Manufacturer's type designation | EGS1245FD | |
| 1.3 | 驱动方式 | Drive | 电动 Electric | |
| 1.4 | 驾驶方式 | Operator type | 座驾式 | |
| 1.5 | 额定载荷 | Load capacity | Q(kg) | 1200 |
| 1.6 | 载荷中心距 | Load center distance | c (mm) | 400 |
| 1.7 | 前悬距 | centre of drive axle to fork | x (mm) | 319 |
| 1.8 | 轴距 | Wheelbase | y (mm) | 1150 |
| 重量Weight | ||||
| 2.1 | 自重(含电瓶) | Service weight (include battery) | kg | 2212 |
| 2.2 | 轴负载,满载时前/后轴 | Axle loading,laden front/rear | kg | 2905/307 |
| 2.3 | 轴负载,空载时前/后轴 | Axle loading,unladen front/rear | kg | 1105/1007 |
| 轮胎 ,底盘Types,Chassis | ||||
| 3.1 | 轮子类型,驱动轮/承载轮 | Tyre type driving wheels/loading wheels | 实心轮胎 | |
| 3.2 | 轮子尺寸,前轮 | Tyre size,front | mm | 4.00-8 |
| 3.3 | 轮子尺寸,后轮 | Tyre size ,rear | mm | 3.50-5 |
| 3.4 | 轮,前后数量(x=驱动轮) | Wheels,number front rear(x=driven wheels) | mm | 2x/2 |
| 3.5 | 前轮轮距 | Tread,front | b10 (mm) | 760 |
| 3.6 | 后轮距,承载端 | Thread,rear | b11(mm) | 185 |
| 尺寸 Dimensions | ||||
| 4.1 | 门架/货叉倾斜 前倾/后倾 | Mast/fork carriage tilt, forward/backward | a/b (°) | 5/5 |
| 4.2 | 门架缩回时高度 | Height,mast lowered | h1(mm) | 1985 |
| 4.3 | 自由提升高度 | Free lift | h2(mm) | 1107 |
| 4.4 | 起升高度 | Lift height | h3 (mm) | 4500 |
| 4.5 | 作业时门架最大高度 | Maximum height of gantry | h4(mm) | 5378 |
| 4.6 | 货叉下降后叉面高度 | Lowered height | h13(mm) | 35 |
| 4.7 | 护顶架高度 | Height of overhead guard (cabin) | h6 (mm) | 1975 |
| 4.8 | 座位高度 | Seat height | h7(mm) | 950 |
| 4.9 | 整车长度 | Overall length | l1 (mm) | 2415 |
| 4.10 | 到货叉垂直面的长度 | Length to face of forks | l2(mm) | 1645 |
| 4.11 | 整体宽度 | Overall width | b1 (mm) | 872/860 |
| 4.12 | 货叉尺寸 | Fork dimensions | s/ e/ l (mm) | 35/100/770 |
| 4.13 | 货叉外宽 | Distance between fork-arms | b5 (mm) | 220-800 |
| 4.14 | 轴距中心处离地间隙 | Ground clearance, center of wheelbase | m2 (mm) | 69 |
| 4.15 | 托盘为 1200宽 × 1000长的通道宽度 | Aisle width for pallets 1000 × 1200 crossways | Ast (mm) | 2975 |
| 4.16 | 托盘为800宽 × 1200长的通道宽度 | Aisle width for pallets 800 × 1200 lengthways | Ast (mm) | 3175 |
| 4.17 | 最小转弯半径 | Turning radius | Wa(mm) | 1540 |
| 性能参数 Performance data | ||||
| 5.1 | 行驶速度,满载/空载 | Travel speed, laden/ unladen | km/h | 7/9 |
| 5.2 | 起升速度,满载/空载 | Lifting speed, laden/ unladen | m/ s | 0.183/0.282 |
| 5.3 | 下降速度,满载/空载 | Lowering speed, laden/ unladen | m/ s | 0.213/0.226 |
| 5.4 | 最大爬坡度,满载/空载 | Max. gradeability, laden/unladen | % | 10/15 |
| 5.5 | 加速时间,满载/空载 | Acceleration time with/without load | s | / |
| 5.6 | 制动类型 | Service brake type | 液压制动 Hydraulic | |
| 电机,动力源 Electric-engine | ||||
| 6.1 | 驱动电机额定功率 S2 60分钟 | Drive motor rating S2 60 min | kW | 3.0 |
| 6.2 | 起升电机额定功率 S3 15% | Lift motor rating at S3 15% | kW | 4 |
| 6.3 | 电瓶电压/标称容量 K5 | Battery voltage/nominal capacity K5 | V/Ah | 24/400 |
| 6.4 | 电瓶重量 | Battery weight | kg | 310 |
| 6.5 | 电瓶允许最大尺寸 | The maximum allowed size battery | mm | 745/320/532 |
| 6.6 | 能耗 ,根据VDI循环 | Energy consumption acc. to VDI cycle | kW/h | - |
| 其他数据 Addition data | ||||
| 8.1 | 驱动控制类型 | Type of drive control | 交流速度控制 AC | |
| 8.2 | 转向类型 | Steering type | 电子助力 Electronic Assistance | |
| 8.3 | 噪音等级 | Sound pressure level at the driver’s ear | dB(A) | ≤70 |



电话: 400-996-7021




